- [產品]-->JYDB臥式液壓打包機
- [產品]-->JYFU廢棉處理機
- [產品]-->JYDB110C 立式液壓打包機
產品推薦
產品分類
聯系方式
- 聯系人:江蘇精亞環境科技有限公司
- 郵 箱:sales@jingya.com
- 地 址:江蘇省江陰市新橋鎮河西路96號
- 電 話:0510-86125888
- 傳 真:0510-86121800
紡織專用水冷螺桿式冷水機組
發布時間:2012-04-09
.jpg)
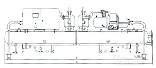
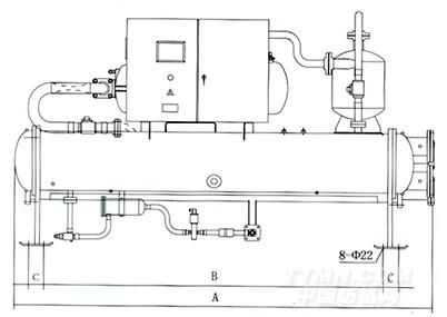
電子膨脹閥適時精確控制供液量;特制高效油分離器;可靠的回油系統;國際名牌螺桿壓縮機及制冷配件;先進的PLC可編程控制具聯網功能;觸摸屏操作面板;可靠完善的多種保護;寬范圍制冷量自動控制。 主要技術性能參數
.jpg)
.jpg)

|
型號Model |
A |
B |
C |
D |
E |
F |
G |
H |
J |
K |
M |
Q |
P |
|
LS304LGM |
2800 |
2180 |
120 |
300 |
1000 |
1200 |
500 |
1800 |
580 |
270 |
280 |
100 |
100 |
|
LS357LGM |
3250 |
2630 |
120 |
310 |
1000 |
1300 |
500 |
1850 |
580 |
270 |
280 |
125 |
100 |
|
LS380LGM |
3250 |
2630 |
120 |
350 |
1000 |
1300 |
550 |
1900 |
580 |
270 |
280 |
125 |
100 |
|
LS483LGM |
3250 |
2630 |
120 |
350 |
1000 |
1300 |
600 |
1900 |
630 |
290 |
300 |
125 |
125 |
|
LS583LGM |
3250 |
2630 |
120 |
350 |
1000 |
1300 |
620 |
1950 |
650 |
290 |
300 |
150 |
125 |
|
LS688LGM |
3250 |
2630 |
120 |
360 |
1000 |
1350 |
650 |
1950 |
680 |
310 |
320 |
150 |
150 |
|
LS754LGM |
3250 |
2630 |
120 |
360 |
1000 |
1350 |
650 |
2050 |
680 |
310 |
320 |
150 |
150 |
|
LS926LGM |
3250 |
2630 |
120 |
360 |
1200 |
1400 |
680 |
2100 |
700 |
320 |
350 |
200 |
200 |
|
LS1033LGM |
3250 |
2630 |
120 |
360 |
1200 |
1400 |
680 |
2150 |
700 |
320 |
350 |
200 |
200 |








